Single Girder Cranes

Single Girder Cranes

Single Girder Cranes

Trinity Solutions designs and manufactures Single Girder Cranes in compliance with IS-3177 duty classification standards. Known for their low dead weight, these EOT cranes offer cost-effective material handling solutions. Additionally, they provide superior floor coverage compared to other types of overhead cranes, making them ideal for efficient operations.

We are dedicated to ongoing innovation and refinement of our products to exceed client expectations consistently.​

​At Trinity Solutions, our unwavering commitment to continuous innovation and product refinement is central to our mission of consistently exceeding client expectations. By actively seeking and embracing customer feedback, we gain valuable insights into areas for improvement, allowing us to tailor our products and services to better meet our clients’ needs .​

Advantages

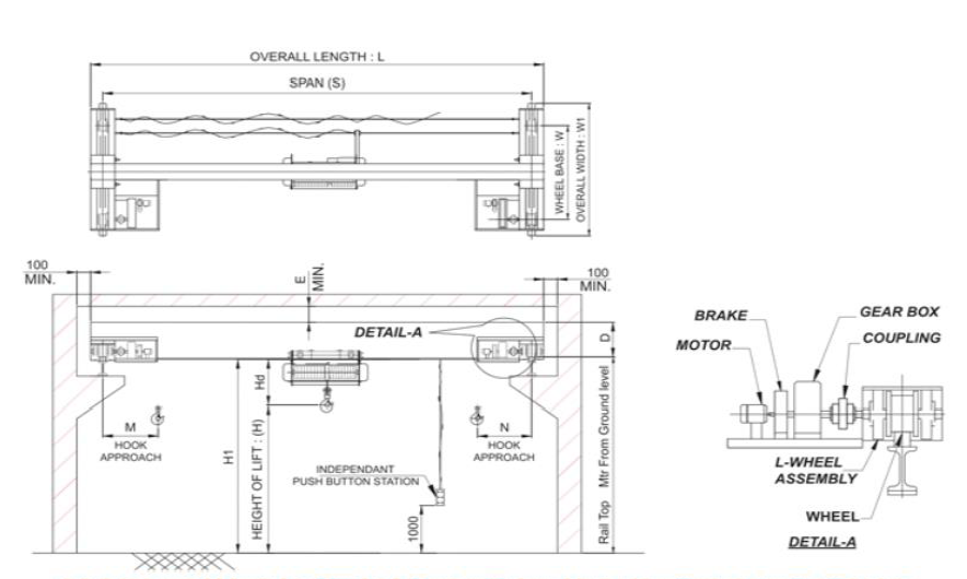
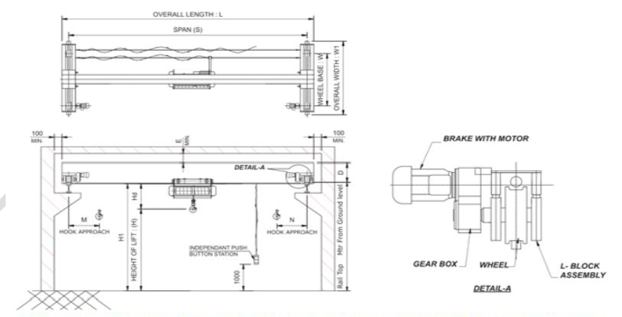
Single-Girder Overhead Bridge Cranes Details

TypeSingle Girder Overhead Traveling Cranes – EOT Cranes
StructureConstructed with a Main Beam, End Carriage, Hoist Trolley, and a complete Electrical and Control System for reliable operation.
Quality StandardManufactured under ISO 9001:2008 quality certification, ensuring high standards in safety and performance.
MotorEquipped with Slipring or Squirrel Cage Crane Duty Motors from trusted brands such as Tacklers, BBL, ABB, and CGL—designed for durability in all motions.
BrakesFitted with Hydraulic Thruster Type Brakes from SOC or Anand, ensuring effective braking in all operations.
Gear BoxUses high-performance gearboxes by Tacklers, known for their reliability under continuous duty.
Limit SwitchesFeatures Gravity Roller Limit Switches in hoisting and counterweight systems. Also includes 2-Way Roller Type Limit Switches for cross travel from S.O.C. and Giovenzana (CE & UL approved), enhancing operational safety.
Optional FeaturesWireless Radio Remote Control
Shrouded DSL System for Power Feeding
Flameproof / Anti-Explosion Design
PLC-Based Automatic Control System
Integrated Bridge Lighting
Single Girder Cranes
Single Girder Cranes
Single Girder Cranes

CRANE ACCESSORIES

Double Girder Cranes

Festoon System – C Rail CE Certified

Double Girder Cranes

Insulated Shrouded DSL System – CE Cert.

Push Button CE Certified/IP-65

Push Button CE Certified/IP-65

Flat Cables CE Certified

Flat Cables CE Certified

Male/Female Socketed Panels

Male/Female Socketed Panels

End Carriages for Crane

End Carriages for Crane

Gear Boxes for Crane

Gear Boxes for Crane

Gear-Couplings

Gear-Couplings

T-Track Two/Four Wheel Trolley

T-Track Two/Four Wheel Trolley

Radio-Remote Control

Radio-Remote Control

Wire/Chain/Nylon Rope Sling

Wire/Chain/Nylon Rope Sling

Master/Cam Controllers

Master/Cam Controllers

Rotary Limit Switches

Rotary Limit Switches

Bottom Hook Assembly

Bottom Hook Assembly

LT-Beams with Sq. Bar Rails for Crane Travel

LT-Beams with Sq. Bar Rails for Crane Travel

Roller Lever/Weight Operated Limit Switches

Roller Lever/Weight Operated Limit Switches

Rail & Rail Clamp

Rail & Rail Clamp

Double Girder Cranes

Festoon System – C Rail CE Certified

Double Girder Cranes

Insulated Shrouded DSL System – CE Cert.

Push Button CE Certified/IP-65

Push Button CE Certified/IP-65

Flat Cables CE Certified

Flat Cables CE Certified

Male/Female Socketed Panels

Male/Female Socketed Panels

End Carriages for Crane

End Carriages for Crane

Gear Boxes for Crane

Gear Boxes for Crane

Gear-Couplings

Gear-Couplings

T-Track Two/Four Wheel Trolley

T-Track Two/Four Wheel Trolley

Radio-Remote Control

Radio-Remote Control

Wire/Chain/Nylon Rope Sling

Wire/Chain/Nylon Rope Sling

Master/Cam Controllers

Master/Cam Controllers

Rotary Limit Switches

Rotary Limit Switches

Bottom Hook Assembly

Bottom Hook Assembly

LT-Beams with Sq. Bar Rails for Crane Travel

LT-Beams with Sq. Bar Rails for Crane Travel

Roller Lever/Weight Operated Limit Switches

Roller Lever/Weight Operated Limit Switches

Rail & Rail Clamp

Rail & Rail Clamp

Have Questions? We’re Here to Help!

Scroll to Top

Inquiry now. Our team will contact you shortly...!